家庭神龛与宗族祠堂
家庭神龛与宗族祠堂的目的相同,只不过前者是五服之内(同高祖的后代)的已故祖先灵魂的居所,后者是同宗族但又不属于家庭神龛的先人灵魂的处所。事实上,二者的差别并不明显。有些家庭神龛上供奉着远祖,有些仅供着几位直系先人。有些家族没有宗祠,便把所有知晓姓名的祖先牌位都放在家庭神龛。
无论贫富,家家户户皆有神龛。神龛通常位于民居西面的房间,一般在二楼西屋的正房,特设一木制灵台用于供奉。每位祖先的名字、寿数和生辰八字及其坟墓的风水方位,都要写在牌位上。这些牌位要么单独放在一个木龛内,要么夫妻俩的一同置于木龛中。血缘亲近的祖先牌位会特地饰以彩缎。牌位按序摆放,面前常供有食品、三脚香炉、蜡烛和一束鲜花或纸花。
一般来说,西镇人不会单独供奉祖先牌位。旁边还常常供有孔夫子、关公(武财神)、佛祖或道教神仙的画像和牌位。供奉祖先的香火祭品都要与众神同享。
宗祠通常由宗族成员义务捐资修建——富人多捐,穷人少捐。建造宗祠耗资巨大,只有族内有富裕之家的宗族能够负担。有座宗祠由一个人独自捐款修建,因而声名远播。
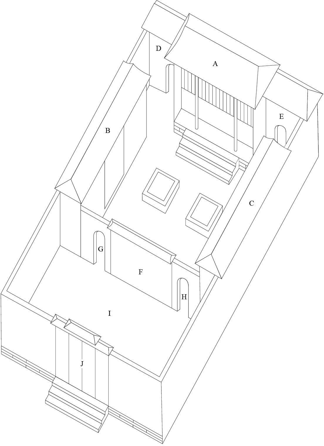
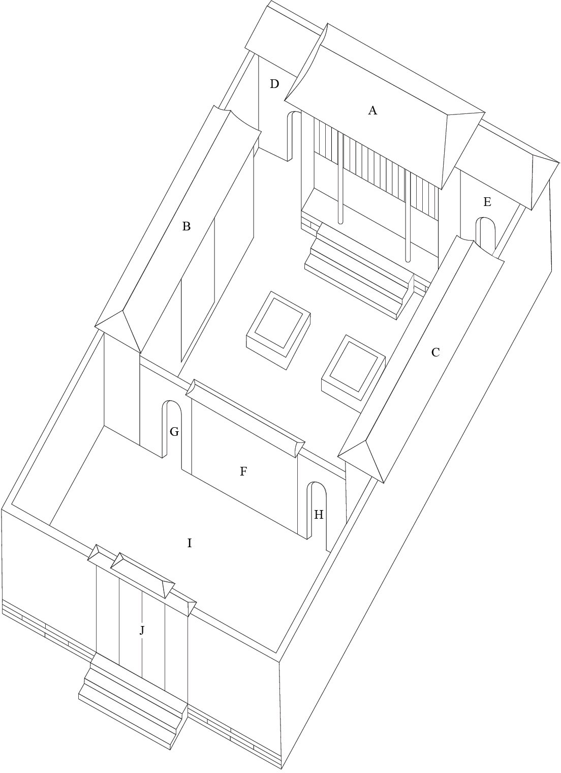
图11 某宗祠
宗祠不像普通寺庙一般供奉神像,这里供奉的是宗族内所有不在家庭神龛里的男性祖先及其妻子的牌位。西镇共有12座宗祠,5座由Y姓族人修建,2座是Ch姓族人所建,其余5座宗祠分别属于不同姓氏家族。所有宗祠都由一些耐用材料(砖、石或松木)建成,一概进行彩绘和涂漆。上图所示便是一座典型的宗祠。
中央大厅(A)是祖先们的居所。这是一间高大的单层屋子,有着宽阔、铺砌精美的前廊。沿着宽敞的台阶而下就是庭院。两侧围着院子的是两栋双层楼房(B和C),除非守祠人住一间小屋,否则通常都空置着。有时这些房屋会租给租客,此外仅在祭祀场合,宗族会议、聚会赌博或修订族谱时方投入使用,期限长短不定。主厅隔壁的两个小房间(D和E)是刚才所提及的仪式或社交活动时的厨房。F是一面巨大的照壁,和民居的照壁相同,G和H是两扇通往外院的小门。内院常以石板或砖块铺地,外院则往往不加整修,仅铺两条小道通向大门(J)。内外两院面积大致相当。祠堂的大门与任一大宅的门楼相差无几,精雕细琢,令人印象深刻。在祠堂大门内上部,入口的任意一侧,有一块大理石碑,碑上刻着所有在官场或文坛建功立业的祖先的名字及其生活朝代与所获功名。
祖先牌位的排列方式充分表明了个体成就的重要性。中央大厅有三个神龛,神龛之间又分高低。通常每个祖先的名字都会写在一块大牌位上,置于三个神龛的其中一个中。实际上仅受过诰敕或官拜上卿的祖先名字会被置于中间的神龛,他们的妻子偶尔也被一同供奉其中,无一例外。最古老的祖先,称为“始祖”或第一世祖,一贯是曾闻达庙堂的人物,其牌位会被安排在中间神龛的中央位置。一般来说,所有神龛中的牌位都是红底金字。两侧的神龛放着所有不在家庭神龛内的男性祖先及其妻子的牌位。三个神龛的所有牌位都按照辈分和年龄次序摆放。
我们关于这个社区的在世居所和彼世处所的调查清楚地表明,一方面他们完全服膺祖先权威,另一方面他们既承认又汲汲于争夺个人和家庭的优先地位。


